Light Steel Structure Insulation 75mm Thickness EPS PU/Rockwool Sandwich Panel Prefab/Container House for Temporary Office or living room etc.
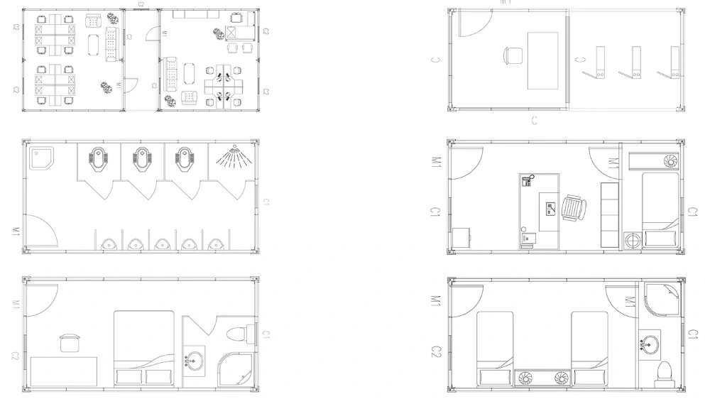
Component Details


Specification:
specification: 2.4M/3.0M standard container | Roof shape | Flat roof with internal water draining design | |
storey | less than 3 storeys | ||
design data | Designed service life | 20 years | |
floor live load | 2.0KN/m2 | ||
roof live load | 1.0KN/m2 | ||
wind load | 0.6KN/m2 | ||
The resistant earthquake grade | 8 degree | ||
Recommending function | Accomendation, office, stores, shop, meeting room etc | ||
structure | Light steel structure | Using Q235 material. | |
Design and producing | Professional software to do structure designing and calculating, Fully automatic CNC equipment manufacturing, | ||
wall | thickness | 75mm thickness color steel&glass wool sandwich panel | |
insulation | 75mm thickness glass wool | ||
Roof | roof panel | 0.5mm thickness galvanized color steel sheet | |
insulation | 100mm thick glass wool felt, with single foil | ||
top ceiling | 0.5mm thickness galvanized color steel sheet | ||
Floor | Floor top | 2.0mm thick PVC flooring | |
Base | 19mm fiber cement board | ||
insulation | 100mm thickness glass wool, with aluminum foil. | ||
Door | specification | W X H=850*2030 | |
material | steel door | ||
Window | specification | W X H=800*1100 | |
Frame material | UPVC, 60 series | ||
Glass | 5mm double glaze | ||
Electrical | Can supply national standard, american standard, european standard, austrilian standard electrical applicans according customers needs. | ||
Socket | 4 five holes socket 10A, 1 three holes AC socket 16A, GB | ||
Electric wire | BV-2.5mm² / BV-4mm² | ||
Voltage | 220-250V | ||
breaker | High breaking circult breaker | ||
Water | Standard construction, equipment and fittings accord with GH | ||
inlet ipe | PPR | ||
outlet pipe | UPVC | ||
Our advantage
1. Construction management
We act as advocates for our clients, performing due diligence in the pre-construction phase, minimizing risks for our clients and starting projects off.
2. Program management
From project accounting to overseeing the team, from maintaining schedules to bidding to outside vendors, we offer our industry knowledge.
3. General contracting
When overseeing the bidding process and executing the project it is our role to drive value, both in terms of our initial bid and by controlling the project.
4. Design and build
Design and build is all about working with efficiencies created within the design phase, thereby minimizing on-site labor and executing seamlessly while controlling costs.
Our Projects


FAQ
♥Q: Are you a factory or trading company?
we are factory.
♥Q: What's your supply capacity?
A:Annual Production: container house 72000sets,prefab house 564000square meters;portable toilet 24000sets;steel structure 360000square meters .
♥ Q:How to install ?
A:We will provide installation instruction and video for you, technicians will be sent to help you if it is necessary. However, the visa fee, air tickets, accommodation,wages will be provided by buyers.
♥ Q: How long is your delivery time?
A:Generally it is within 2-30 days ,definitely according to quantity and color.
♥Q: How do you guarantee the quality of the products?
A:Strict product quality control, quality makes the future.This is the tenet of our factory. Each product from our factory has strict testing procedures, and must be 100% quality before delivery.
♥Q: How can I get the quotation of the project ?
A:If you have drawing ,we can offer you our quotation according to your drawing .
If you have no design , Our engineer will design some drawings for you to confirm. And then offer you a quotation.
Company InformationLocated in Shandong Province of China, Shandong Wiskind is the largest Steel Building Materials Manufacturing Factory in Northern China. We have been dedicated in manufacturing and engineering steel structure projects since 1980.Our company has successfully passed the ISO 9001 and ISO 14001 certification and the products has exported to more than 20 countries all over the world such as America, Russia, UK, Australia, Ukraine, South Africa, West Africa, South America, etc.We will continue to blaze new trails and build a famous brand of the world in steel construction industry.

Contact Us
Sincerity, Excellence, Supremacy and Win-Win!